
Listed by: RE/MAX of Spokane (509) 710-2024
TASFULLY UPDATED MIDILOME 4-LEVEL HOME W/GARAGE SHOP & RV PARKING! Located on nearly a half acre cul-de-sac homesite, this 2,266 sq/ft home has 4br/3ba and is ready for move in. There’ hardwood floors, new carpet, gas fireplace, updated bathrooms and a spectacular Kitchen Upgrade! You’ll see stainless steel appliances w/gas range, raised panel custom cabinets w/hardware, granite counter w/undermounted sink, and lots of storage. You’ll love the covered back deck, patio, lush landscaping w/storage shed, play house, sprinkler system and fenced backyard. For the nuts and bolts of the home, you’ll enjoy natural gas furnace, Central A/C, Model Irrigation for water, public sewer and there’s no active HOA or dues to be paid. Same owner for over 20 years and you’ll be amazed at the pride of ownership – A MUST SEE!!
Data services provided by IDX BrokerView full listing details
| Price: | $561000 |
| Address: | 3209 S Bates Rd |
| City: | Spokane Valley |
| County: | Spokane |
| State: | Washington |
| Subdivision: | Midilome |
| MLS: | 202522556 |
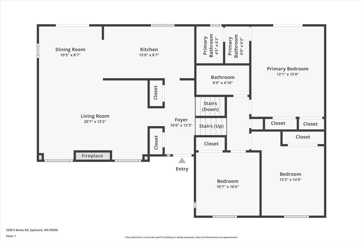
| Square Feet: | 2,266 |
| Acres: | 0.46 |
| Lot Square Feet: | 0.46 acres |
| Bedrooms: | 4 |
| Bathrooms: | 3 |
| class: | Residential |
| dining: | Informal |
| stories: | 2 |
| areaGrid: | A110/080 |
| features: | 200 AMP |
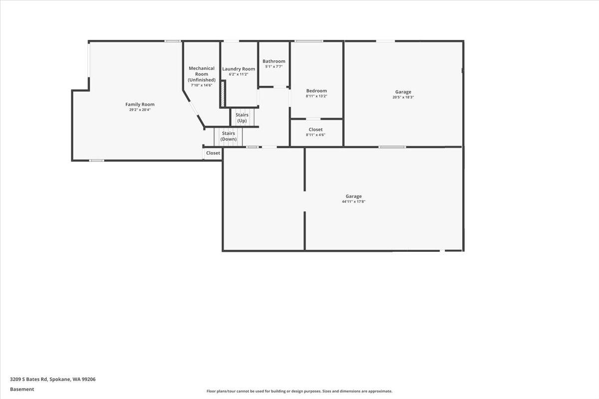
| basementYN: | yes |
| highSchool: | University |
| familyRecRm: | Bsmt, 2nd Flr, Outside Ent |
| primaryBdrm: | Dbl Clst, 3/4 Bath, 2nd Flr |
| listingTerms: | FHA, VA Loan, Conventional, Cash |
| structureType: | Four Level |
| buyerFinancing: | Conventional |
| taxAnnualAmount: | 4740 |
| elementarySchool: | Chester |
| roadFrontageType: | City Street, Paved Road |
| buildingAreaTotal: | 2266 |
| highSpeedInternet: | yes |
| listingAgentEmail: | [email protected] |
| allowedUseCaseGroups: | IDX |
| middleOrJuniorSchool: | Horizon |
| interiorOrRoomFeatures: | Hot Water, High Speed Internet, Smart Thermostat, Pantry, Windows Vinyl |