
Listed by: RE/MAX of Spokane (509) 710-2024
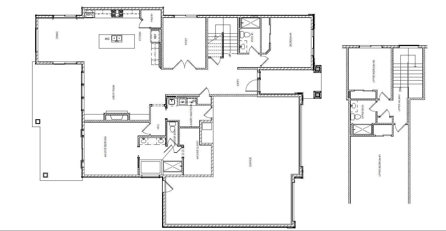
The “Rainier” by Camden Homes! One of Camden’s most popular main floor primary suite homes with an upper level, this home could check all the boxes! An open-concept design with vaulted great room ceilings and main floor utilities. An inviting covered entry with bedroom to the front and study/office off the foyer hallway to the main living area. Spacious kitchen with stainless steel Kitchen-Aid appliances include gas range, quartz counters, vaulted great-room ceilings w/gas fireplace and so much more! You’ll love the 5-peice primary suite bath and slider out of the primary suite to the completely covered rear patio! The upper level is a surprise, have to see it! High end finishes and no need for upgrades – this home is loaded! Approximate Completion Date is Mid-July. A MUST SEE!
Data services provided by IDX BrokerView full listing details
| Price: | $846,850 |
| Address: | 1320 S Manifold Rd |
| City: | Spokane Valley |
| County: | Spokane |
| State: | Washington |
| Subdivision: | Vistas at Belleaire Phase 3 |
| MLS: | 202614126 |
| Square Feet: | 2,688 |
| Acres: | 0.26 |
| Lot Square Feet: | 0.26 acres |
| Bedrooms: | 4 |
| Bathrooms: | 3 |
| class: | Residential |
| dining: | Informal, Eat Bar |
| stories: | 1 |
| areaGrid: | A110/084 |
| features: | 200 AMP |
| areaSource: | Builder |
| basementYN: | no |
| highSchool: | Central Valley |
| familyRecRm: | 1st Flr, Outside Ent, Great room, Den or Office |
| primaryBdrm: | Wlkin Clst, Full Bath, Dbl Sinks, 1st Flr, Garden Tub |
| feeFrequency: | Annually |
| listingTerms: | VA Loan, Conventional, Cash |
| lotSizeWidth: | 70 |
| lotSizeLength: | 160 |
| structureType: | One Story |
| associationFee: | 323 |
| elementarySchool: | Sunrise |
| internetProvider: | Comcast/Xfinity |
| roadFrontageType: | City Street, Paved Road |
| buildingAreaTotal: | 2688 |
| highSpeedInternet: | yes |
| listingAgentEmail: | [email protected] |
| allowedUseCaseGroups: | IDX |
| middleOrJuniorSchool: | Greenacres |
| interiorOrRoomFeatures: | Hot Water, High Speed Internet, Smart Thermostat, Pantry, Kitchen Island, Windows Vinyl |
| accessoryDwellingUnitYN: | no |