
Listed by: RE/MAX of Spokane (509) 710-2024
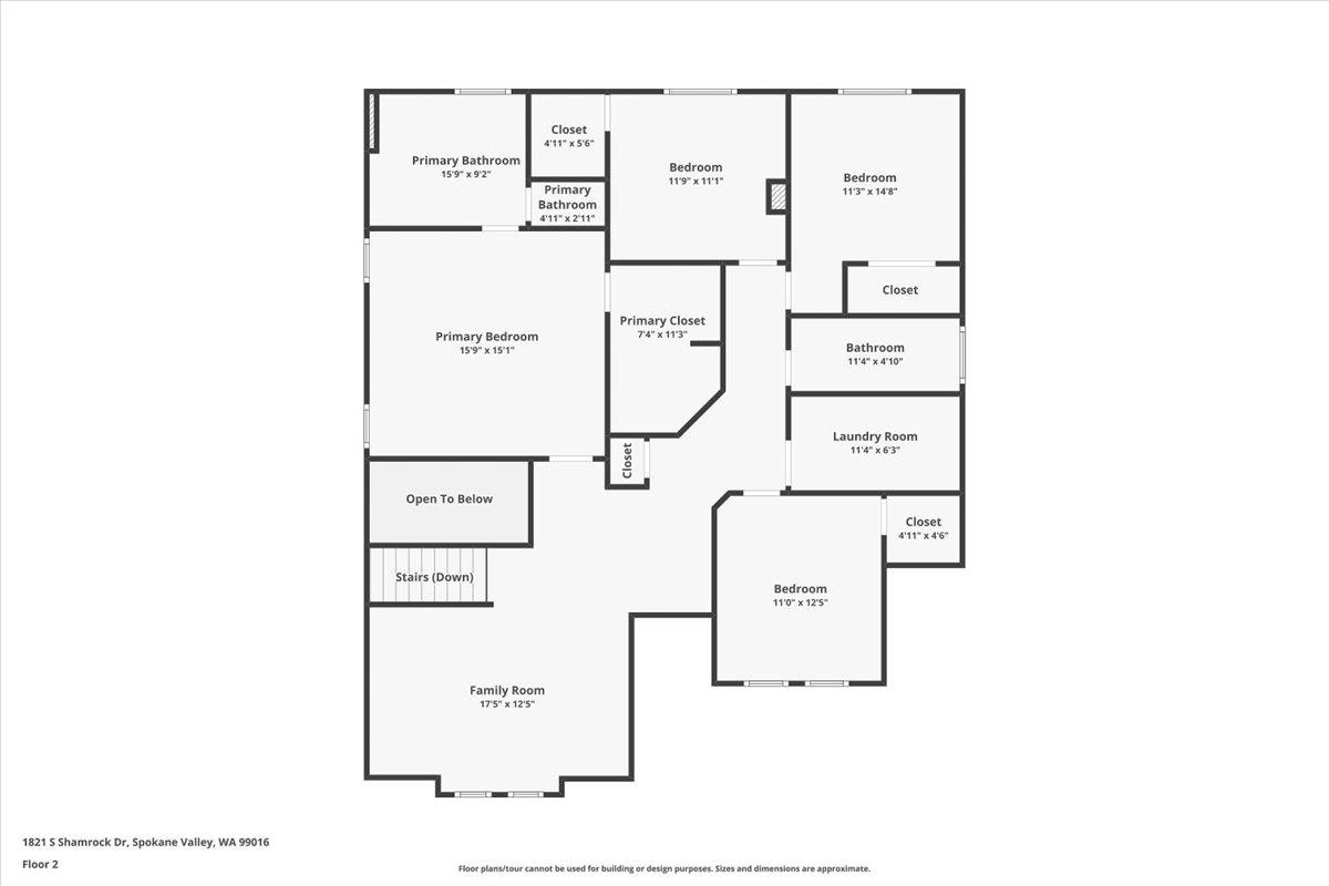
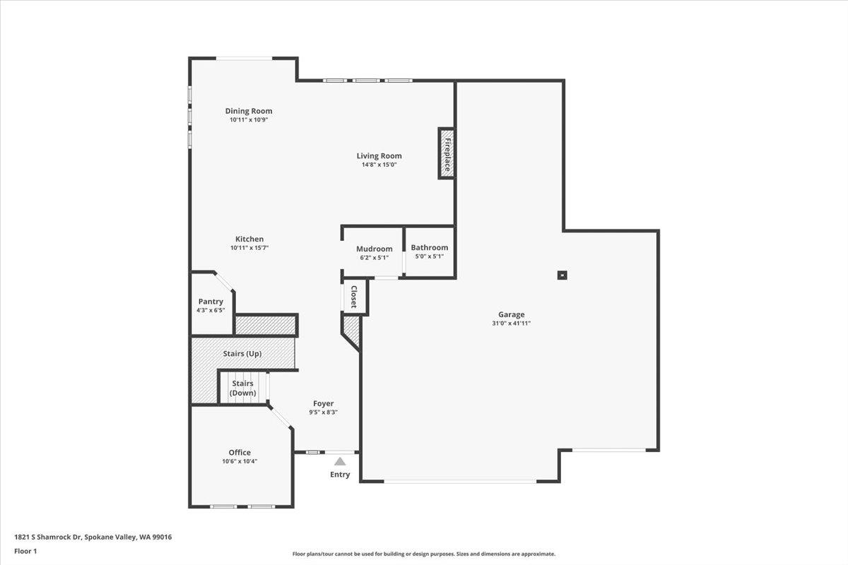
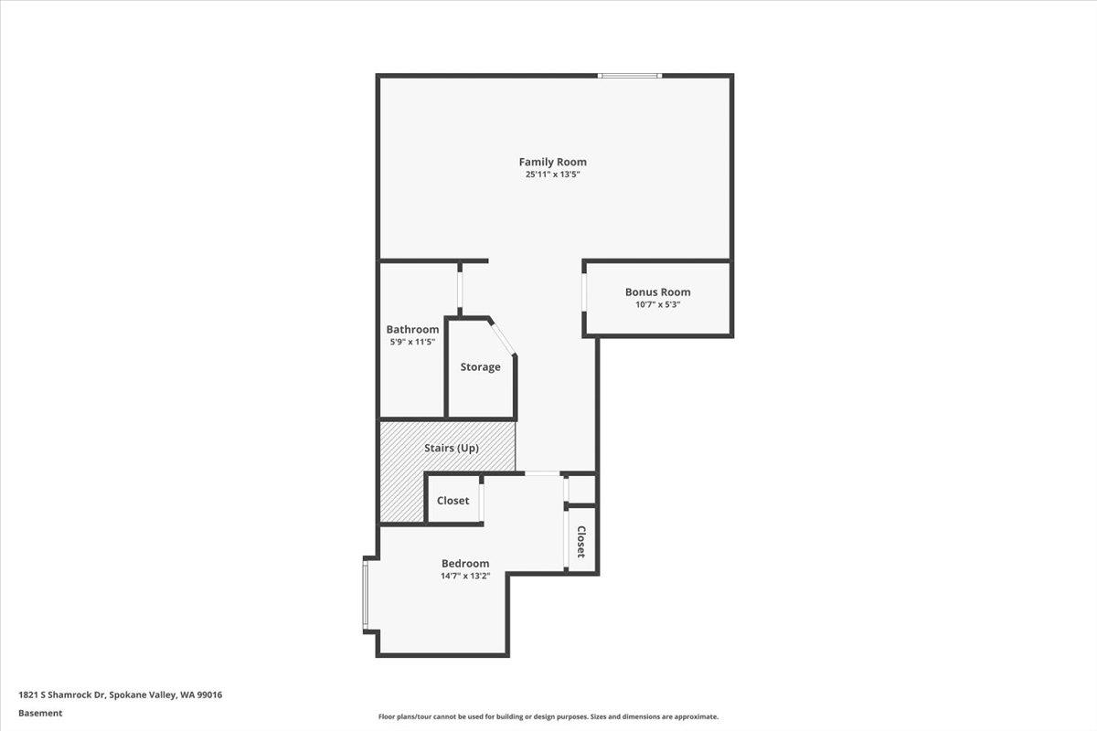
PRICED TO SELL! A FULLY FINISHED CAMDEN HOMES BUILT RE-SALE IN MORNINGSIDE! 5br/3.5 ba, approx 3,995 sq/ft and resting on a beautifully landscaped 63 x 120 homesite. The kitchen has granite counters, stainless steel appliances w/gas range, all appliances stay! The main level is open and inviting with office/den off entry, great room for family hang out time and entertaining with gas fireplace, built-ins, lots of windows, easy access out to back yard patio and so much more! The upper level has four bedrooms, spacious loft area and laundry room with W/D. The basement is fully finished by builder and laid out so well with a huge family room, bedroom, bath and abundant storage! You’ll love the backyard, fully fenced, sprinkler system, storage shed and recently painted exterior! The garage is a dream with more storage, shelving and extra tandem space! PRIDE OF OWNERSHIP BY ORIGINAL OWNER AND A MUST SEE!!
Data services provided by IDX BrokerView full listing details
| Price: | $775000 |
| Address: | 1821 S Shamrock Dr |
| City: | Greenacres |
| County: | Spokane |
| State: | Washington |
| Zip Code: | 99016 |
| Subdivision: | MORNINGSIDE BRIGADOON |
| MLS: | 202527149 |
| Year Built: | 2012 |
| Square Feet: | 3,995 |
| Acres: | 0.17 |
| Lot Square Feet: | 0.17 acres |
| Bedrooms: | 5 |
| Bathrooms: | 4 |
| roof: | Composition |
| class: | Residential |
| dining: | Informal, Eat Bar |
| cooling: | Central Air |
| heating: | Natural Gas, Forced Air |
| stories: | 2 |
| areaGrid: | A110/084 |
| basement: | Full, Finished, Rec/Family Area |
| features: | 200 AMP |
| mlsStatus: | Sold |
| utilities: | Cable Available |
| appliances: | Free-Standing Range, Gas Range, Dishwasher, Refrigerator, Disposal, Microwave, Washer, Dryer, Hard Surface Counters |
| areaSource: | Public Records |
| basementYN: | yes |
| highSchool: | Central Valley |
| familyRecRm: | Bsmt, 1st Flr, 2nd Flr, Off Kit, Great room, Den or Office |
| lotFeatures: | Fenced Yard, Sprinkler - Automatic, Level, Surveyed |
| primaryBdrm: | Wlkin Clst, Full Bath, Dbl Sinks, 2nd Flr, Garden Tub |
| feeFrequency: | Annually |
| garageSpaces: | 4 |
| listingTerms: | FHA, VA Loan, Conventional, Cash |
| lotSizeWidth: | 63 |
| associationYN: | yes |
| lotSizeLength: | 120 |
| structureType: | Two Story |
| associationFee: | 313 |
| buyerFinancing: | Conventional |
| fireplacesTotal: | 1 |
| otherStructures: | Stge Shd |
| parkingFeatures: | Attached, Workshop in Garage, Garage Door Opener, Oversized |
| taxAnnualAmount: | 6990 |
| elementarySchool: | Sunrise |
| internetProvider: | Xfinity |
| roadFrontageType: | City Street, Paved Road |
| buildingAreaTotal: | 3995 |
| fireplaceFeatures: | Gas |
| highSpeedInternet: | yes |
| listingAgentEmail: | [email protected] |
| lotSizeSquareFeet: | 7560 |
| newConstructionYN: | no |
| architecturalStyle: | Contemporary, Craftsman |
| allowedUseCaseGroups: | IDX |
| middleOrJuniorSchool: | Evergreen |
| constructionMaterials: | Stone Veneer, Masonite, Wood Siding, Fiber Cement |
| interiorOrRoomFeatures: | Hot Water, High Speed Internet, Smart Thermostat, Pantry, Kitchen Island, Natural Woodwork, Windows Vinyl |
| accessoryDwellingUnitYN: | no |
| elementarySchoolDistrict: | Central Valley |
| associationTransferFeePaidBy: | Seller |