
Listed by: RE/MAX of Spokane (509) 710-2024
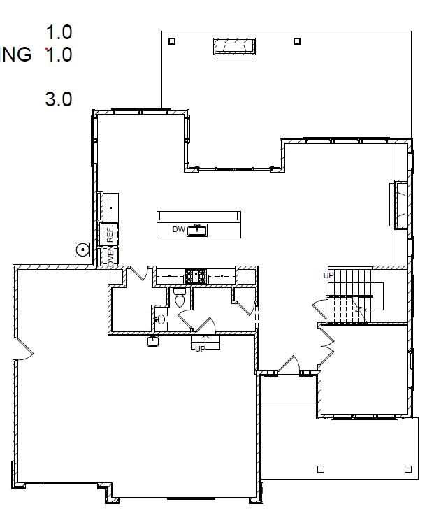
The “Millcreek” by Camden Homes in south Valley’s Fairmont Estates neighborhood! This home is an entertainer’s delight and one our most sought after layouts that will capture your heart at first entry. The main floor features a generous open living where the great-room, kitchen and dining nook effortlessly transition into one another. In addition, the double slider doors off the island lead to the covered back patio w/outdoor fireplace! There’s a huge walk-in pantry, drop zone off garage entry and office/den perfect for those needing to get work done from home. The upper level has four bedrooms, including the luxurious primary suite, laundry and loft. There’s so many details but not enough room here to list- Some of the features included are: LVP Floors, Quartz, gas fireplace w/stone, natural gas furnace w/A/C, Solar panels, On Demand Gas Hot Water, Front landscaping w/ sprinkler system. Estimated completion date is Feb/March 2025. A MUST SEE!!
Data services provided by IDX BrokerView full listing details
| Price: | $886505 |
| Address: | 18004 E Wind Rose Ct |
| City: | Greenacres |
| County: | Spokane |
| State: | Washington |
| Zip Code: | 99016 |
| Subdivision: | Fairmont Estates |
| MLS: | 202423477 |
| Year Built: | 2024 |
| Square Feet: | 3,061 |
| Acres: | 0.43 |
| Lot Square Feet: | 0.43 acres |
| Bedrooms: | 4 |
| Bathrooms: | 3 |
| roof: | Composition |
| view: | Mountain(s), Territorial |
| class: | Residential |
| dining: | Informal, Eat Bar |
| cooling: | Central Air |
| heating: | Natural Gas, Forced Air, Zoned, Solar |
| stories: | 2 |
| areaGrid: | A110/084 |
| basement: | Crawl Space, None |
| features: | 200 AMP |
| mlsStatus: | Sold |
| appliances: | Tankless Water Heater, Free-Standing Range, Gas Range, Double Oven, Dishwasher, Disposal, Microwave, Hard Surface Counters |
| basementYN: | no |
| highSchool: | Central Valley |
| familyRecRm: | 1st Flr, Outside Ent, Great room, Den or Office |
| lotFeatures: | Sprinkler - Partial, Level, Cul-De-Sac, Oversized Lot, Irregular Lot, Surveyed |
| primaryBdrm: | Wlkin Clst, Full Bath, Dbl Sinks, 2nd Flr, Garden Tub |
| feeFrequency: | Annually |
| garageSpaces: | 3 |
| listingTerms: | FHA, VA Loan, Conventional, Cash |
| associationYN: | yes |
| structureType: | Two Story |
| associationFee: | 295 |
| buyerFinancing: | Conventional |
| fireplacesTotal: | 2 |
| parkingFeatures: | Attached, Garage Door Opener, Oversized |
| elementarySchool: | Sunrise |
| roadFrontageType: | City Street, Paved Road |
| buildingAreaTotal: | 3061 |
| fireplaceFeatures: | Gas |
| highSpeedInternet: | yes |
| listingAgentEmail: | [email protected] |
| lotSizeSquareFeet: | 18996 |
| newConstructionYN: | yes |
| architecturalStyle: | Contemporary |
| allowedUseCaseGroups: | IDX |
| associationAmenities: | Cable TV, Patio, Hot Water, High Speed Internet |
| middleOrJuniorSchool: | Greenacres |
| constructionMaterials: | Stone Veneer, Wood Siding, Fiber Cement |
| interiorOrRoomFeatures: | Smart Thermostat, Pantry, Kitchen Island, Windows Vinyl |
| elementarySchoolDistrict: | Central Valley |