
Listed by: RE/MAX of Spokane (509) 710-2024
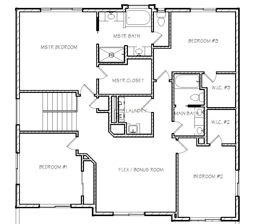
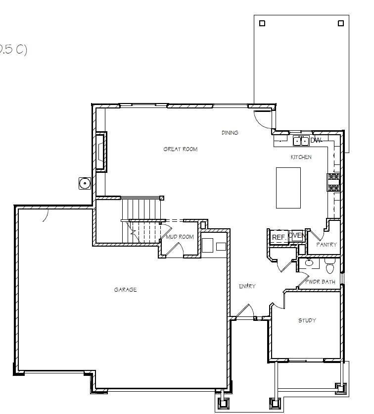
The “Camano LT” by Camden Homes in the Vistas at Belleaire Phase 3. This is one of our most traditional and versatile mid-sized two-story designs. An open and elegant space on the main floor offering an open kitchen which flows through the eating space and into the oversized great room. Stunning open-rail staircase, covered back patio, and drop zone with bench off the kitchen give this home real character! The upper level boasts four bedrooms including a large primary suite, loft, laundry room and great storage. You’ll love all the extras that come with a Camden Home – Gas Forced Air Heat, A/C, Solar Panels, Garage Door Openers on all G-doors, designer selected Quartz Counters, Kitchen Aid Stainless Steel Appliances w/Gas Cooktop & Wall Oven, Gas Fireplace, Solid Interior Doors, the list goes on!! Situated on a spacious 70×160 homesite giving you ample space to get great creative with your back yard landscaping dreams. A MUST SEE!
Data services provided by IDX BrokerView full listing details
| Price: | $844518 |
| Address: | 1414 S Manifold Rd |
| City: | Spokane Valley |
| County: | Spokane |
| State: | Washington |
| Zip Code: | 99016 |
| Subdivision: | The Vistas at Belleaire Phase 3 |
| MLS: | 202514268 |
| Year Built: | 2025 |
| Square Feet: | 2,770 |
| Acres: | 0.26 |
| Lot Square Feet: | 0.26 acres |
| Bedrooms: | 4 |
| Bathrooms: | 3 |
| roof: | Composition |
| class: | Residential |
| dining: | Informal, Eat Bar |
| cooling: | Central Air |
| heating: | Natural Gas, Forced Air, Zoned, Solar |
| stories: | 2 |
| areaGrid: | A110/084 |
| basement: | Crawl Space, None |
| features: | 200 AMP |
| mlsStatus: | Sold |
| appliances: | Free-Standing Range, Gas Range, Dishwasher, Disposal, Microwave, Hard Surface Counters |
| basementYN: | no |
| highSchool: | Central Valley |
| familyRecRm: | 1st Flr, 2nd Flr, Great room, Den or Office |
| lotFeatures: | Sprinkler - Partial, Level, Oversized Lot, Surveyed |
| primaryBdrm: | Wlkin Clst, Full Bath, Dbl Sinks, 2nd Flr, Garden Tub |
| feeFrequency: | Annually |
| garageSpaces: | 3 |
| listingTerms: | FHA, VA Loan, Conventional, Cash |
| lotSizeWidth: | 70 |
| associationYN: | yes |
| lotSizeLength: | 160 |
| structureType: | Two Story |
| associationFee: | 313 |
| buyerFinancing: | Conventional |
| fireplacesTotal: | 1 |
| parkingFeatures: | Attached, Workshop in Garage, Garage Door Opener, Oversized |
| elementarySchool: | Sunrise |
| roadFrontageType: | City Street, Paved Road |
| buildingAreaTotal: | 2770 |
| fireplaceFeatures: | Gas |
| highSpeedInternet: | yes |
| listingAgentEmail: | [email protected] |
| lotSizeSquareFeet: | 11240 |
| newConstructionYN: | yes |
| architecturalStyle: | Contemporary |
| allowedUseCaseGroups: | IDX |
| associationAmenities: | Cable TV, Patio, Hot Water, High Speed Internet |
| middleOrJuniorSchool: | Greenacres |
| constructionMaterials: | Stone Veneer, Wood Siding, Fiber Cement |
| associationTransferFee: | 150 |
| interiorOrRoomFeatures: | Smart Thermostat, Pantry, Kitchen Island, Windows Vinyl |
| elementarySchoolDistrict: | Central Valley |
| associationTransferFeePaidBy: | Buyer |